Se oferă spre vânzare un spațiu comercial amplasat ultracentral în municipiul Salonta, pe strada Republicii, într-o zonă cu vizibilitate excelentă și acces facil. Proprietatea reprezintă o oportunitate rară de investiție datorită arhitecturii deosebite și a poziționării strategice.
📐 Detalii Generale
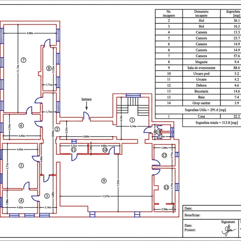
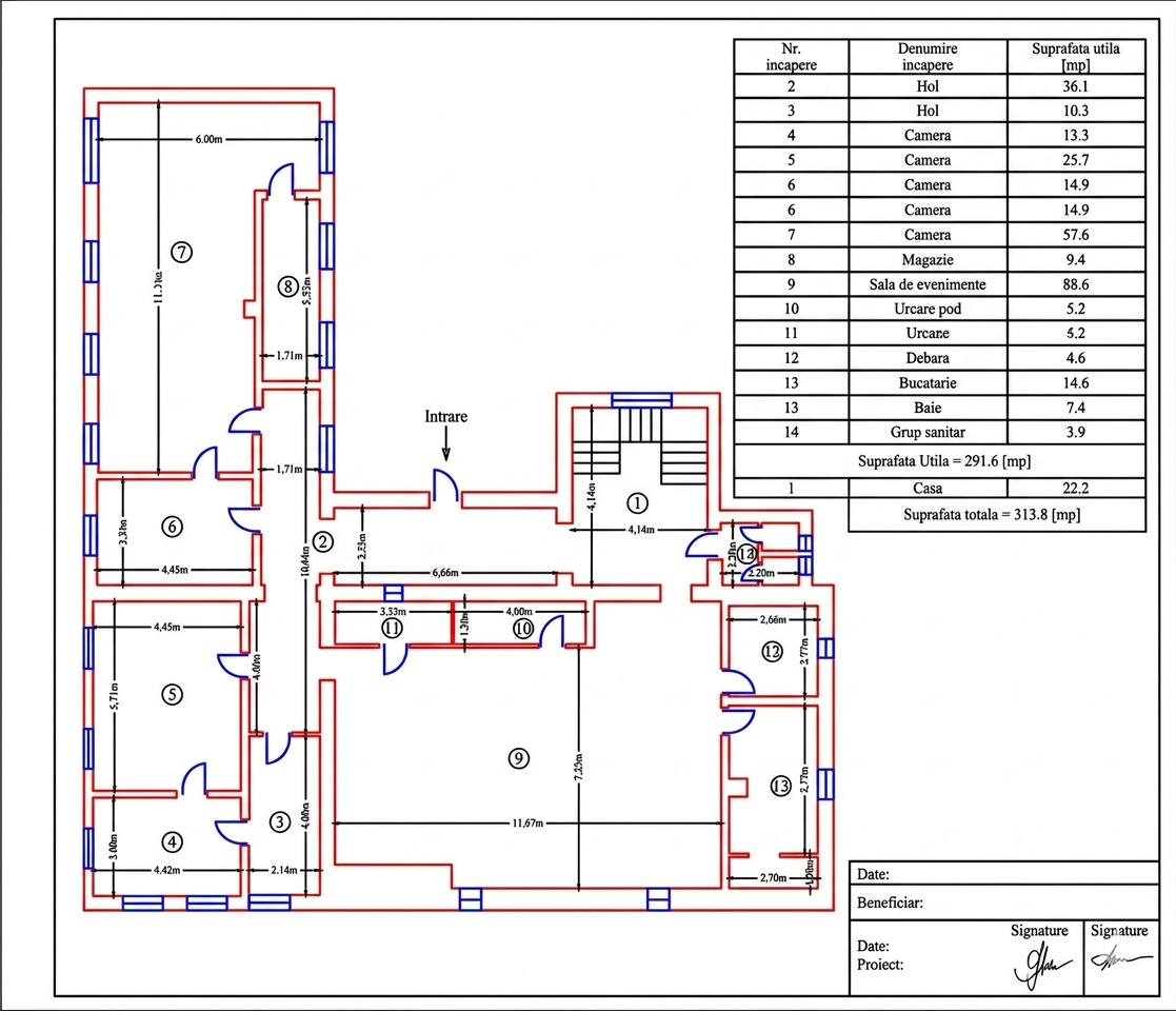
Suprafață teren: 928 mp
Regim înălțime: Parter + Etaj
Suprafață utilă totală: 585,4 mp
Structură: Două corpuri de clădire
📍 Compartimentare Parter – 400 mp
Parterul este împărțit în două unități independente, ideale pentru destinații comerciale distincte:
🏬 Unitatea Comercială 1 (199,2 mp)
Sală de vânzare / Open space: 80,8 mp (cu acces direct din stradă)